中古一戸建て 藤沢市鵠沼松が岡1丁目

  • #中古一戸建て
  • #藤沢市鵠沼松が岡
  • 1/2
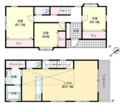
    藤沢市鵠沼松が岡、中古一戸建ての間取り画像です

    【間取り】

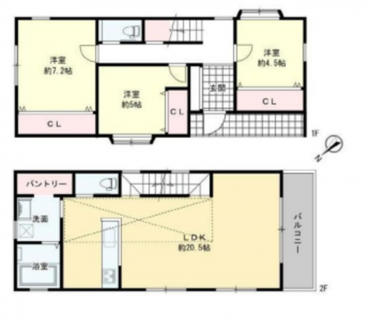
    藤沢市鵠沼松が岡、中古一戸建ての画像です
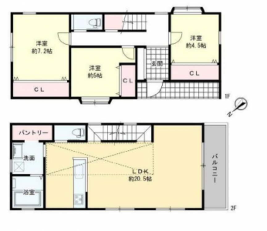
    藤沢市鵠沼松が岡、中古一戸建ての間取り画像です
    藤沢市鵠沼松が岡、中古一戸建ての画像です
    藤沢市鵠沼松が岡、中古一戸建ての間取り画像です
    所在地
    藤沢市鵠沼松が岡1丁目
    6,480万円
    28.80坪 3LDK

    閑静な住宅地に佇む戸建住宅♪湘南海岸公園まで徒歩約8分。

    ファミリーマート 鵠沼海岸店まで徒歩約11分(約800m)
    そうてつローゼン 鵠沼店まで徒歩約16分(約1200m)

    物件概要

    交通

    江ノ島線 まで 徒歩10分

    接道状況
    北西側4.4m 間口約2.5m
    土地面積
    公簿 158.42㎡ (47.92坪)
    建物面積
    95.22㎡ (28.80坪)
    築年数
    2015年 (平成27) 10月
    築10年
    建ぺい率
    40%
    容積率
    80%
    土地権利
    所有権
    構造および階数
    木造 地上2階建
    小学校区
    鵠洋 ( 1300m )
    中学校区
    湘洋 ( 1900m )
    私道負担
    地目
    宅地
    現況
    引渡時期
    相談
    駐車場
    上水道
    下水道
    ガス
    都市計画
    市街化区域
    用途地域
    1種低層
    設備・条件
    備考
    取引態様
    仲介
    周辺地図を確認する

    (弊社管理番号: 3000210)

    【更新日】2025年08月15日

    【次回更新日】2025年10月15日

    その他周辺物件

    最近チェックした物件

    会社紹介 Company

    藤沢市の
    不動産情報

    HPを見たと言って
    お気軽にお問い合わせください

    無料相談・お電話窓口

    0466-53-8355
    営業時間:9:00〜18:00 定休日:水曜日