新築一戸建て 藤沢市片瀬4丁目2号棟
所在地
藤沢市片瀬4丁目2号棟
7,290万円
29.52坪
1SSLDK
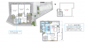
約12.5帖のルーフバルコニーと開放感のある天井高約2.9mのLD!
セブン-イレブン 藤沢片瀬5丁目店 4 分(300 m)
FUJI 鵠沼藤が谷店 14 分(1.0 km)
ハックドラッグ江の島店 14 分(1.0 km)
やまか江の島店 14 分(1.0 km)
上西原公園 4 分(300 m)
物件概要
- 交通
-
江ノ島電鉄線 湘南海岸公園駅 まで 徒歩3分
- 接道状況
- 公道5m
- 土地面積
- 120.55㎡ (36.46坪)
- 建物面積
- 97.61㎡ (29.52坪)
- 築年数
- 2026年 (令和8) 2月 完成予定
- 建ぺい率
- 50%
- 容積率
- 80%
- 土地権利
- 所有権
- 構造および階数
- 木造 地上2階建
- 小学校区
- 片瀬 ( 650m )
- 中学校区
- 片瀬 ( 1600m )
- 私道負担
- 地目
- 宅地
- 現況
- 建築中
- 引渡時期
- 相談
- 駐車場
- 有
- 上水道
- 下水道
- ガス
- 都市ガス
- 都市計画
- 市街化区域
- 用途地域
- 1種低層
- 設備・条件
- ルーフバルコニー、システムキッチン、食器洗浄乾燥機、モニタ付インターホン、ウォークインクローゼット、ペット可、トイレ2箇所
- 備考
- 取引態様
- 仲介



