新築一戸建て 藤沢市大庭1号棟
所在地
藤沢市大庭1号棟
5,499万円
32.56坪
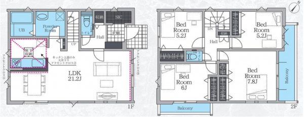
4LDK
ZEH水準省エネ住宅です!
スーパー・コンビニ徒10分圏内で良好な周辺環境です!
Aコープ善行店 6 分(400 m)
ローソン 藤沢大庭店 2 分(150 m)
藤沢善行団地内郵便局 7 分(500 m)
物件概要
- 交通
-
江ノ島線 善行駅 まで 徒歩15分
- 接道状況
-
北東側 私道4.5m
南西側 公道4.1m - 土地面積
- 166.39㎡ (50.33坪)
- 建物面積
- 107.65㎡ (32.56坪)
- 築年数
- 2026年 (令和8) 2月
- 建ぺい率
- 60%
- 容積率
- 180%
- 土地権利
- 所有権
- 構造および階数
- 木造 地上2階建
- 小学校区
- 大越 ( 300m )
- 中学校区
- 善行 ( 950m )
- 私道負担
- 有
- 地目
- 宅地
- 現況
- 引渡時期
- 相談
- 駐車場
- 有
- 上水道
- 公共
- 下水道
- 公共
- ガス
- 都市ガス
- 都市計画
- 市街化区域
- 用途地域
- 1種中高
- 設備・条件
- システムキッチン、カウンターキッチン、食器洗浄乾燥機、シャンプードレッサー、浴室乾燥機、モニタ付インターホン、洗浄便座、1BOX駐車可、追い焚き、ペット可、床下収納、トイレ2箇所、網戸
- 備考
-
下水道処理区域、宅地造成等工事規制区域
私道負担/8299番1(144㎡ 持分6分の1ずつ所有)
並列2台駐車可能(車種による) - 取引態様
- 仲介



