新築一戸建て 藤沢市本鵠沼4丁目1号棟
所在地
藤沢市本鵠沼4丁目1号棟
7,490万円
28.61坪
2LDK
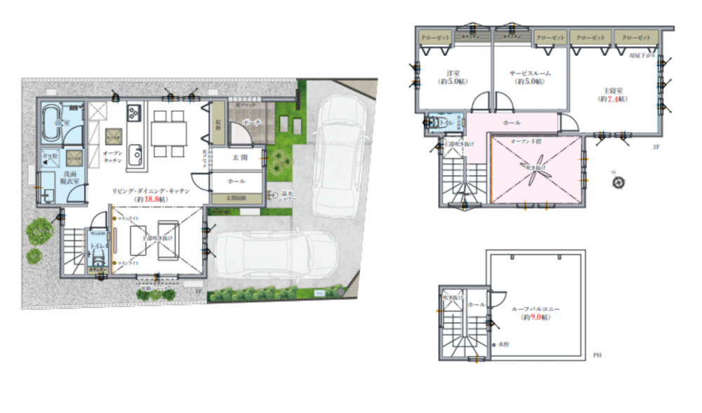
吹き抜けで開放感のあるLDK!
約9帖のルーフバルコニー!
書斎にも学習にも多目的に活躍するカウンター付き洋室!
ヨークフーズ 辻堂太平台店 10 分(700 m)
セブン-イレブン 藤沢本鵠沼5丁目店 3 分(230 m)
ハックドラッグ鵠沼店 7 分(500 m)
湘南T-SITE 12 分(800 m)
湘南太平台病院 5 分(350 m)
鵠沼げんきっず保育園 3 分(210 m)
物件概要
- 交通
-
江ノ島線 本鵠沼駅 まで 徒歩10分
- 接道状況
- 東側 公道4m
- 土地面積
- 115.99㎡ (35.08坪)
- 建物面積
- 94.60㎡ (28.61坪)
- 築年数
- 2026年 (令和8) 8月
- 建ぺい率
- 50%
- 容積率
- 80%
- 土地権利
- 所有権
- 構造および階数
- 木造 地上2階建
- 小学校区
- 鵠沼 ( 550m )
- 中学校区
- 鵠沼 ( 1100m )
- 私道負担
- 地目
- 宅地
- 現況
- 引渡時期
- 相談
- 駐車場
- 有
- 上水道
- 下水道
- ガス
- 都市ガス
- 都市計画
- 市街化区域
- 用途地域
- 1種低層
- 設備・条件
- ルーフバルコニー、システムキッチン、食器洗浄乾燥機、ペット可、駐車場2台分、床下収納、トイレ2箇所、電動シャッター、ガス衣類乾燥機用(幹太くん)ガス栓、シーリングファン、タッチレス水栓
- 備考
- 取引態様
- 仲介



