新築一戸建て 藤沢市辻堂太平台1丁目2号棟
所在地
藤沢市辻堂太平台1丁目2号棟
6,390万円
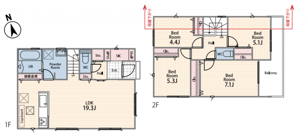
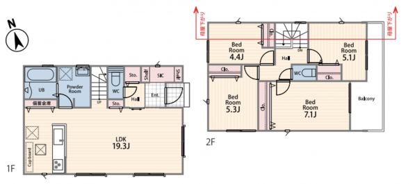
29.80坪
4LDK
駅まで平坦!
カースペース2台!(車種による)
ZEH水準エネルギーハウス!
FUJI 鵠沼店 9 分(650 m)
業務スーパー 辻堂店 14 分(1.0 km)
ファミリーマート 鵠沼海岸七丁目店 7 分(500 m)
クリエイトS・D 藤沢鵠沼海岸店 10 分(700 m)
物件概要
- 交通
-
江ノ島線 鵠沼海岸駅 まで 徒歩15分
- 接道状況
- 東側 公道4.5m
- 土地面積
- 121.65㎡ (36.79坪)
- 建物面積
- 98.54㎡ (29.80坪)
- 築年数
- 2026年 (令和8) 1月
- 建ぺい率
- 50%
- 容積率
- 80%
- 土地権利
- 所有権
- 構造および階数
- 木造 地上2階建
- 小学校区
- 辻堂 ( 400m )
- 中学校区
- 湘洋 ( 850m )
- 私道負担
- 地目
- 宅地
- 現況
- 引渡時期
- 相談
- 駐車場
- 有
- 上水道
- 下水道
- ガス
- 都市ガス
- 都市計画
- 市街化区域
- 用途地域
- 1種低層
- 設備・条件
- カウンターキッチン、食器洗浄乾燥機、浴室乾燥機、ペット可、駐車場2台分、トイレ2箇所、備蓄倉庫、宅配BOX
- 備考
- 取引態様
- 仲介



