新築一戸建て 藤沢市辻堂元町2丁目C号棟
所在地
藤沢市辻堂元町2丁目C号棟
6,290万円
29.30坪
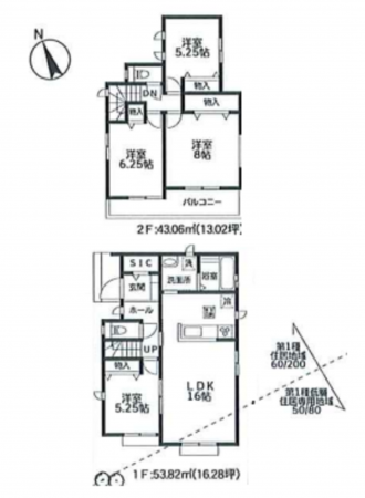
4LDK
約16帖のLDK!
玄関にSIC有!
駐車場2台分(車種による)
食品館あおば 辻堂店 7 分(500 m)
ファミリーマート 辻堂新町三丁目店 9 分(650 m)
テラスモール湘南 16 分(1.1 km)
辻堂二葉幼稚園 9 分(650 m)
物件概要
- 交通
-
東海道線 辻堂駅 まで 徒歩11分
湘南新宿ライン 辻堂駅 まで 徒歩11分
- 接道状況
- 西側 公道
- 土地面積
- 123.65㎡ (37.40坪)
- 建物面積
- 96.88㎡ (29.30坪)
- 築年数
- 2026年 (令和8) 2月
- 建ぺい率
- 58%
- 容積率
- 184%
- 土地権利
- 所有権
- 構造および階数
- 木造 地上2階建
- 小学校区
- 八松 ( 400m )
- 中学校区
- 明治 ( 1100m )
- 私道負担
- 地目
- 宅地
- 現況
- 空
- 引渡時期
- 即時
- 駐車場
- 有
- 上水道
- 下水道
- 公共
- ガス
- 都市ガス
- 都市計画
- 市街化区域
- 用途地域
- 1種住居
- 設備・条件
- 床暖房、システムキッチン、食器洗浄乾燥機、シャンプードレッサー、浴室乾燥機、モニタ付インターホン、洗浄便座、複層ガラス、ペット可、駐車場2台分、床下収納、トイレ2箇所、SIC
- 備考
- 駐車場は土間打ち2台分になります。
- 取引態様
- 仲介



