新築一戸建て 藤沢市城南5丁目7号棟
所在地
藤沢市城南5丁目7号棟
5,580万円
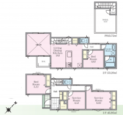
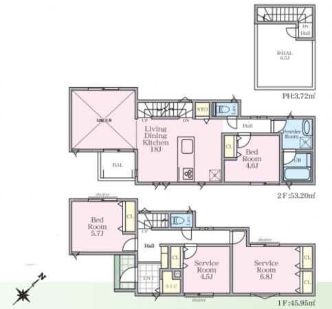
31.11坪
2SLDK
駅周辺に大型ショッピングモールがあり買物にも便利な立地!
セブン-イレブン 藤沢城南4丁目店 4 分(290 m)
オーケー 辻堂羽鳥店 10 分(750 m)
クリエイトS・D 藤沢羽鳥店 9 分(700 m)
藤沢辻堂新町郵便局 12 分(850 m)
湘南中央病院 9 分(700 m)
テラスモール湘南 18 分(1.3 km)
物件概要
- 交通
-
東海道線 辻堂駅 まで 徒歩19分
- 接道状況
- 4.5m 間口約4.1m
- 土地面積
- 197.19㎡ (59.64坪)
- 建物面積
- 102.87㎡ (31.11坪)
- 築年数
- 2026年 (令和8) 2月
- 建ぺい率
- 60%
- 容積率
- 180%
- 土地権利
- 所有権
- 構造および階数
- 木造 地上2階建
- 小学校区
- 明治 ( 750m )
- 中学校区
- 羽鳥 ( 1000m )
- 私道負担
- 地目
- 宅地
- 現況
- 完成済
- 引渡時期
- 相談
- 駐車場
- 有
- 上水道
- 下水道
- ガス
- 都市ガス
- 都市計画
- 市街化区域
- 用途地域
- 2種住居
- 設備・条件
- システムキッチン、食器洗浄乾燥機、浴室乾燥機、モニタ付インターホン、洗浄便座、複層ガラス、ペット可、トイレ2箇所、全室コンセント2ヶ所、浄水器内蔵型ハンドシャワー水栓、カン太くん用ガス栓
- 備考
- 取引態様
- 仲介



