新築一戸建て 藤沢市善行3丁目No.1
所在地
藤沢市善行3丁目No.1
5,590万円
31.18坪
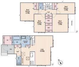
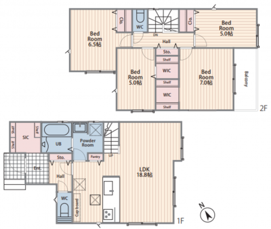
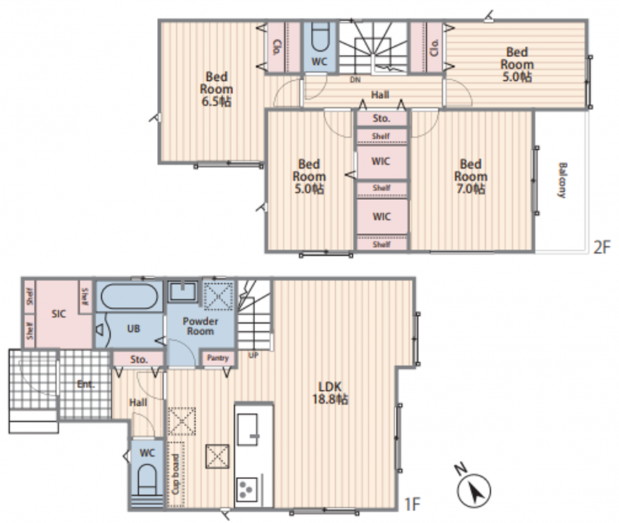
4LDK
充実の周辺環境です!
駐車場2台分※車種による
Aコープ善行店 12 分(800 m)
ツルハドラッグ 善行駅前店 10 分(700 m)
ファミリーマート 藤沢善行店 7 分(500 m)
藤沢善行郵便局 6 分(450 m)
椎の実公園 1 分(53 m)
物件概要
- 交通
-
江ノ島線 善行駅 まで 徒歩8分
- 接道状況
-
南東側 公道4m 間口約10.5m
南西側 公道4m 間口約10m - 土地面積
- 118.22㎡ (35.76坪)
- 建物面積
- 103.09㎡ (31.18坪)
- 築年数
- 2026年 (令和8) 4月
- 建ぺい率
- 60%
- 容積率
- 100%
- 土地権利
- 所有権
- 構造および階数
- 木造 地上2階建
- 小学校区
- 善行 ( 900m )
- 中学校区
- 善行 ( 700m )
- 私道負担
- 地目
- 宅地
- 現況
- 引渡時期
- 相談
- 駐車場
- 有
- 上水道
- 下水道
- 公共
- ガス
- 都市ガス
- 都市計画
- 市街化区域
- 用途地域
- 1種低層
- 設備・条件
- システムキッチン、食器洗浄乾燥機、ウォークインクローゼット、ペット可、駐車場2台分、トイレ2箇所、パントリー
- 備考
- 取引態様
- 仲介



