中古マンション 片瀬東映マンション
所在地
藤沢市片瀬海岸2丁目
7,880万円
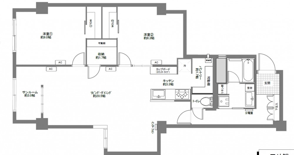
101.14m²
2LDK
片瀬海岸の歴史を語る東映マンション
江の島、太平洋が一望できる魅力
リビングから望める江の島、片瀬西浜海水浴場は圧巻の景色。
商業施設やレストラン、カフェなどが充実しており、日常の買い物や食事を楽しむことができます。
朝は波の音を聞きながらリビングでくつろぎ、夕方にはサンセットを見ながら海岸沿いのお散歩をする。
こんな素敵な生活ができる場所です。
屋上からの江の島花火大会、富士山が望めます。
小田急江ノ島線「片瀬江ノ島」駅:徒歩7分(530m)
江ノ島電鉄線「江ノ島」駅:徒歩13分(1020m)
OdakyuOX江ノ島店:徒歩8分(590m)
やまか江ノ島店:徒歩14分(1100m)
私立湘南白百合学園小学校:徒歩9分(720m)
片瀬郵便局:徒歩14分(1100m)
杉本医院:徒歩13分(970m)
江の島水族館:徒歩3分(230m)
物件概要
- 交通
-
江ノ島線 まで 徒歩6分
- 専有面積
- 壁芯 101.14㎡
- バルコニー
-
面積不明
面積不明 - 所在階/階数
- 7階/8階
- 築年数
-
1970年
(昭和45)
7月
築55年 - 建ぺい率
- 容積率
- 土地権利
- 所有権
- 構造および階数
- SRC(鉄骨鉄筋コンクリート) 造 地上8階建
- 総戸数
- 小学校区
- 片瀬 ( 1500m )
- 中学校区
- 片瀬 ( 2500m )
- 地目
- 現況
- 空
- 引渡時期
- 予定
- 駐車場
- 空有
- 駐車場月額
- 管理形態
- 全部委託
- 管理方式
- 管理人日勤
- 管理会社
- 管理費
- 14,400円
- 修繕積立費
- 13,800円
- 上水道
- 下水道
- ガス
- 都市計画
- 用途地域
- 商業
- 設備・条件
- BS、CS、システムキッチン、シャンプードレッサー、浴室乾燥機、ウォークインクローゼット、ペット可、エレベーター、2沿線以上利用可 / LDK20畳以上 / オーシャンビュー / 山が見える / スーパー 徒歩10分以内 / 市街地が近い / 内装リフォーム / 海まで2km以内 / 南向き / システムキッチン / 浴室乾燥機 / 角住戸 / 陽当り良好 / 駅まで平坦 / 始発駅 / 高層階 / シャワー付洗面化粧台 / 平面駐車場 / 通風良好 / 全居室フローリング / 眺望良好 / ウォークインクローゼット / 全居室6畳以上 / ペット相談 / BS・CS・CATV / 花火大会鑑賞 / 平坦地 / エレベーター / 駐輪場 / 整備された歩道
- 備考
- 取引態様
- 仲介



