中古マンション 藤和江ノ島ホームズステージⅡ
所在地
藤沢市片瀬海岸1丁目
8,280万円
105.56m²
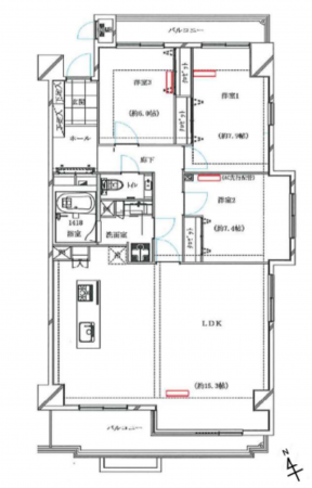
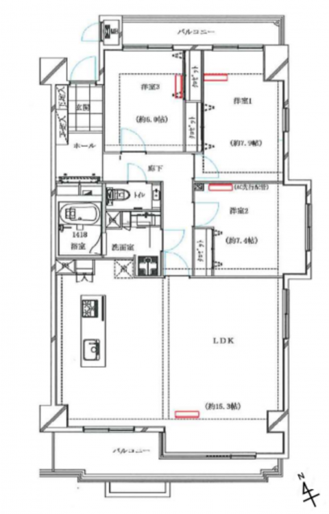
3LDK
リビング・バルコニーから海が望めます!※天候による
片瀬海岸東浜まで約250mです!
やまか江の島店 1 分(73 m)
ハックドラッグ江の島店 1 分(120 m)
ファミリーマート 湘南江ノ島店 3 分(250 m)
物件概要
- 交通
-
江ノ島電鉄線 江ノ島駅 まで 徒歩5分
湘南モノレ―ル 湘南江の島駅 まで 徒歩5分
江ノ島線 片瀬江ノ島駅 まで 徒歩8分
- 専有面積
- 壁芯 105.56㎡
- バルコニー
-
14.25㎡ (南西側)
面積不明 - 所在階/階数
- 3階/5階
- 築年数
-
1988年
(昭和63)
9月
築37年 - 建ぺい率
- 容積率
- 土地権利
- 所有権
- 構造および階数
- RC(鉄筋コンクリート) 造 地下1階 地上5階建
- 総戸数
- 28戸
- 小学校区
- 片瀬 ( 1400m )
- 中学校区
- 片瀬 ( 1900m )
- 地目
- 現況
- 空
- 引渡時期
- 相談
- 駐車場
- 空有
- 駐車場月額
- 13,000〜18,000円/月
- 管理形態
- 全部委託
- 管理方式
- 管理人日勤
- 管理会社
- 三菱地所コミュニティ㈱
- 管理費
- 24,200円
- 修繕積立費
- 20,790円
- 上水道
- 下水道
- ガス
- 都市計画
- 用途地域
- 1種住居
- 設備・条件
- システムキッチン、ペット可、エレベーター
- 備考
-
駐輪場/有(月額500円)
バイク置場/有(月額3,000円~5,000円)
~新規リフォーム2026年2月末完了予定~
◆システムキッチン交換◆ユニットバス交換◆洗面化粧台交換◆洗濯パン交換◆トイレ交換◆クロス全室張替◆フロアタイル張替◆給湯器交換◆フローリング張替え◆建具交換◆照明機器交換◆ハウスクリーニング - 取引態様
- 仲介



